Verkocht onder voorbehoud:Soestdijksekade 335, 2574 AL Den Haag - Foto
Verkocht onder voorbehoud
+20

Soestdijksekade 335 2574 AL Den Haag € 299.000,- k.k.

  • Appartement
  • 4 kamers
  • 3 slaapkamers
  • 1 badkamer
  • Bouwjaar 1938
  • 84 m² gebruiksoppervlakte
  • F Energielabel F

Beschrijving

Bent u opzoek naar een fraai vier kamer appartement met vrij uitzicht over een groot deel van Den Haag? Dan is dit uw kans!

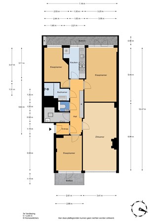
Aan de Soestdijksekade 335 te Den Haag vindt u dit ruime appartement op de derde verdieping bestaande uit vier kamers, een technische ruimte, twee balkons en een separate berging.

Indeling

Begane grond:
Via de open portiek heeft u toegang tot het trappenhuis.

Derde etage:
Via de entree heeft u toegang tot de overloop. De overloop biedt toegang tot alle ruimtes in het appartement zoals de slaapkamers, de technische ruimte met meterkast en opbergruimte, het toilet, de badkamer, de keuken en de woonkamer.

De slaapkamer aan de voorzijde biedt toegang tot het balkon. Het balkon is circa 3,5m2 groot en biedt een fraai uitzicht over een groot gedeelte van Den Haag.

De technische ruimte is voorzien van de meterkast (4 groepen, 1 ALS), de HR C.V.-combiketel (Remeha Avanta - 2009), de was- en droogmachine installatie en extra opbergruimte.

De badkamer en toilet zijn in dezelfde stijl afgewerkt waarbij het toilet is voorzien van een zwevend toilet en fonteintje. De badkamer is voorzien van een wastafelmeubel. een douche en een decentrale ventilatie. De toiletruimte is half hoog betegeld en de badkamer is volledig betegeld.

De slaapkamers en de keuken aan de achterzijde bieden toegang tot het ruimere balkon (circa 6,5m2) gesitueerd op het zuidwesten en biedt ook vrij uitzicht over een gedeelte van de wijk 'Leyenburg'.

De keuken is voorzien van een standaard opstelling met de diverse inbouwapparatuur zoals een gasfornuis met 5 pitten en een groot ovengedeelte en een RVS afzuigkap. De losstaande koelkast is gesitueerd in de hoek van de keuken.

De woonkamer is te bereiken via de overloop en biedt tevens een fraai uitzicht over Den Haag.

De seperate berging is gesitueerd achter het appartementencomplex en is te bereiken via een afgesloten pad.

Bijzonderheden

Bijzonderheden:
- Ruim appartement gelegen op de bovenste (3e verdieping) met fraai uitzicht over Den Haag.
- Gezonde VvE, bijdrage € 125,- per maand (0,5% van de herbouwwaarde wordt in totaal per jaar gereserveerd)
- De meterkast is gemoderniseerd en is voorzien van 4 groepen en 1 aardlekschakelaar
- Houten kozijnen met dubbelglas (lekkende ruiten voorzijde bij balkon en achterzijde hoofdslaapkamer)
- Twee balkons Voorzijde gesitueerd op het Noordoosten en achterzijde gesitueerd op het Zuidwesten.
- Op loopafstand van alle voorzieningen zoals supermarkt, ziekenhuis en scholen.
- Op loopafstand van winkelcentrum Leyenburg en Openbaar vervoer (Tram/bus).
- Binnen 15 minuten in Den Haag centrum of de uitvalswegen.
- Voldoende parkeergelegenheid voor de deur (vrij parkeren tot 18:00 uur).
- Het appartement wordt verkocht met een ouderdom- en asbestclausule.
- Oplevering is mogelijk vanaf 18 mei 2026

Kaart

Kenmerken

Overdracht

Referentienummer
00098
Vraagprijs
€ 299.000,- k.k.
Servicekosten
€ 125,-
Status
Verkocht onder voorbehoud
Aanvaarding
Per maandag 18 mei 2026
Aangeboden sinds
Dinsdag 14 april 2026
Laatste wijziging
Dinsdag 12 mei 2026

Bouw

Type object
Appartement, bovenwoning
Woonlaag
4e woonlaag
Soort bouw
Bestaande bouw
Bouwperiode
1938
Dakbedekking
Bitumen
Type dak
Platdak
Isolatievormen
Grotendeels dubbel glas
Vloerisolatie

Oppervlaktes en inhoud

Woonoppervlakte
83,7 m²
Woonkameroppervlakte
23,5 m²
Keukenoppervlakte
5 m²
Inhoud
299 m³
Oppervlakte externe bergruimte
5 m²
Oppervlakte gebouwgebonden buitenruimte
9,7 m²

Indeling

Aantal bouwlagen
1
Aantal kamers
4 (waarvan 3 slaapkamers)
Aantal badkamers
1 (en 1 apart toilet)

Locatie

Ligging
Aan drukke weg
Nabij winkelcentrum
Vrij uitzicht

Energieverbruik

Energielabel
F

CV ketel

CV ketel
Remeha Avanta
Warmtebron
Gas
Bouwjaar
2009
Combiketel
Ja
Eigendom
Eigendom

Uitrusting

Warm water
CV-ketel
Verwarmingssysteem
Centrale verwarming
Ventilatie methode
Natuurlijke ventilatie
Badkamervoorzieningen
Douche
Wastafel
Wastafelmeubel
Heeft schuur/berging
Ja
Heeft een dakraam
Ja

Vereniging van Eigenaren

Ingeschreven bij de KvK
Ja
Jaarlijkse vergadering
Ja
Periodieke bijdrage
Ja
Reservefonds
Ja
Opstal verzekering
Ja

Kadastrale gegevens

Kadastrale aanduiding
Den Haag N 4046
Perceeloppervlakte
176 m²
Omvang
Appartementsrecht of complex
Eigendomsituatie
Eigen grond
Indexnummer
4

Media

Plattegronden